Proximité centre, terrain 2200m2 dont 1220 m² constructible, partiellement clos, façade principale 23m, exposition Nord-sud, vue dégagée sur vallée de l'Ouanne, zone UB, CU ok. Prix : 44.000 €.
Vend Salon de toilettage Cause Santé, existe depuis 1988, gros fichier clients. Très bonne petite affaire, formation possible. Loyer 710 € charges comprises. Bail neuf. Stock inclus dans le prix.Matériels neufs,baignoire spa. Possibilité autres commerces sauf restauration.
Dans résidence sécurisée. 15 mn gare, bus à proximité. Studio meublé refait à neuf, 20 m², au 2eme étage : cuisinette, grande salle de bains. Gardien sur place. Compteur d'eau individuel, laverie dans la résidence. Chauffage électrique. Libre.
Bonjour, Vends maison avec terrain à Honnecourt sur Escaut, 1) Maison individuelle de 92 m² bâtie sur un terrain de 386 m², isolation intérieure et extérieure (voir photos) effectuée. Descriptif de la maison : - Salon / Salle de séjour et 2 chambres 45,50 m² Puis : - 1 véranda de 23 m² / double vitrage / avec un point cuisson et évier Ensuite : des annexes d...
Bonjour, Vends maison avec terrain à Honnecourt sur Escaut, 1) Maison individuelle de 92 m² bâtie sur un terrain de 386 m², isolation intérieure et extérieure (voir photos) effectuée. Descriptif de la maison : - Salon / Salle de séjour et 2 chambres 45,50 m² Puis : - 1 véranda de 23 m² / double vitrage / avec un point cuisson et évier Ensuite : des annexes d...
45 min Orléans/ Bourges, 1h Blois. Proche A10. Studio de 37m² dans petite copropriété en centre ville. Pièce principale de 22 m², coin cuisine avec cellier attenant, entrée avec placard murale, interphone, wc, salle de bains. Petite Cave. Bon rendement locatif.
A 1h30 maxi de la porte de Clichy (92110) adorable chalet de 28 m², au calme, dans un petit village entre Songeons, Gerberoy et Formery. Le tout sur un terrain constructible viabilisé arboré et clôturé de 1.074 m². - Idéal pour passer des we au calme avec enfants et amis. - Chalet en bois avec 2 terrasses dont 1 couverte - 1 salon, 1 chambre, 1 coin cuisine,...
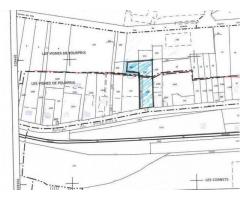
A vendre en baie du Mont Saint-Michel, vue mer, terrain constructible de 1.000 m², sana vis-à-vis. Centre ville, proche tous commerces, médecin, pharmacien. Disponibles à proximité, raccordements EDF, téléphone, et tout-à- l'égoût.
Bonjour, Vends maison avec terrain à Honnecourt sur Escaut, 1) Maison individuelle de 92 m² bâtie sur un terrain de 386 m², isolation intérieure et extérieure (voir photos) effectuée. Descriptif de la maison : - Salon / Salle de séjour et 2 chambres 45,50 m² Puis : - 1 véranda de 23 m² / double vitrage / avec un point cuisson et évier Ensuite : des annexes d...
A vendre en baie du Mont Saint-Michel, vue mer, terrain constructible de 1.000 m², sana vis-à-vis. Centre ville, proche tous commerces, médecin, pharmacien. Disponibles à proximité, raccordements EDF, téléphone, et tout-à- l'égoût.
A vendre en baie du Mont Saint-Michel, vue mer, terrain constructible de 1.000 m², sana vis-à-vis. Centre ville, proche tous commerces, médecin, pharmacien. Disponibles à proximité, raccordements EDF, téléphone, et tout-à- l'égoût.
Chambre meublée 10 m² dans résidence avec concierge. Situé quartier du Thabor, à proximité du centre-ville. En termes de charges : 440Euros/An. Taxe Foncière : 192Euros. Bail en cours (Etudiant): loué 300E/mois charges comprises.
Terrain constructible de 4.600 m² en ville, quartier calme, proche des écoles, lycées, gare et autoroutes. Cette parcelle cadastrée CX 357 en bordure de la rue Henri Barbusse possède un deuxième accès par une voie privée (parcelle cadastrée CX 88 en copropriété). Le certificat d'urbanisme est disponible.