Terrain constructible de 4.600 m² en ville, quartier calme, proche des écoles, lycées, gare et autoroutes. Cette parcelle cadastrée CX 357 en bordure de la rue Henri Barbusse possède un deuxième accès par une voie privée (parcelle cadastrée CX 88 en copropriété). Le certificat d'urbanisme est disponible.
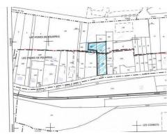
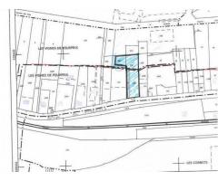
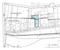
Terrain constructible et borné à 800 m de Criel plage. Proche centre ville, transports, lycée, écoles et crèche. Surface : 1.017 m². Terrain plat et vue sur la mer. Viabilisation en bordure- Libre de constructeur.
Terrain constructible et borné à 800 m de Criel plage. Proche centre ville, transports, lycée, écoles et crèche. Surface : 1.017 m². Terrain plat et vue sur la mer. Viabilisation en bordure- Libre de constructeur.
Appartement 1 pièce, situé à proximité du centre ville, proche de toutes commodités. Dans une résidence avec ascenseur studio d'une surface d'environ 25 m² offrant une pièce de vie, cuisine équipée séparée, salle de bains avec wc, balcon. Place de parking privative. Idéal pour investisseur ou premier achat. A propos de la copropriété : Nombre de lots : 66. C...
Maison de bourg environ 130 m², 7 pièces. Ouverture PVC et double vitrage volets roulants électriques. Rez-de-chaussée : 3 pièces avec douche et wc petit débarras sous escalier. Pièce rangement et chaudière a gaz récente avec production eau chaude. 1er étage : deux chambres douche et wc séparés. 2e étage : deux chambres avec deux lavabos et un wc. Au-dessus ...
Maison de bourg environ 130 m², 7 pièces. Ouverture PVC et double vitrage volets roulants électriques. Rez-de-chaussée : 3 pièces avec douche et wc petit débarras sous escalier. Pièce rangement et chaudière a gaz récente avec production eau chaude. 1er étage : deux chambres douche et wc séparés. 2e étage : deux chambres avec deux lavabos et un wc. Au-dessus ...
2h30 Paris via A10. Maison mitoyenne 100 m² proche toutes commoditées centre ville à 5 mn. Ecoles, collège, maison médicale, tous commerces. Rez-de-chaussée : sejour avec cheminée 26 m², cuisine 14 m² avec plaque gaz et hotte, arrière cuisine nombreux rangements, salle d' eau,wc. Etage : 1 pièce palière, 2 chambres 15 et 10 m² dont une avec placards, une aut...
2h30 Paris via A10. Maison mitoyenne 100 m² proche toutes commoditées centre ville à 5 mn. Ecoles, collège, maison médicale, tous commerces. Rez-de-chaussée : sejour avec cheminée 26 m², cuisine 14 m² avec plaque gaz et hotte, arrière cuisine nombreux rangements, salle d' eau,wc. Etage : 1 pièce palière, 2 chambres 15 et 10 m² dont une avec placards, une aut...
Proximité centre, terrain 2200m2 dont 1220 m² constructible, partiellement clos, façade principale 23m, exposition Nord-sud, vue dégagée sur vallée de l'Ouanne, zone UB, CU ok. Prix : 44.000 €.
Proximité centre, terrain 2200m2 dont 1220 m² constructible, partiellement clos, façade principale 23m, exposition Nord-sud, vue dégagée sur vallée de l'Ouanne, zone UB, CU ok. Prix : 44.000 €.
Proximité centre, terrain 2200m2 dont 1220 m² constructible, partiellement clos, façade principale 23m, exposition Nord-sud, vue dégagée sur vallée de l'Ouanne, zone UB, CU ok. Prix : 44.000 €.